Bàn Cầu TOTO nắp rửa điện tử New Neorest Washlet CS901VT#NW1 Cao Cấp
THÔNG SỐ KỸ THUẬT
| Bộ sưu tập | New NEOREST | |
| Mã sản phẩm |
CS901KVT#NW1/T53P100VR
| |
| Tên sản phẩm | : |
Bàn cầu điện tử NEOREST NX2 (220V)
Bảng điều khiển từ xa Công nghệ men tráng Actilight kháng khuẩn, tự loại bỏ các vết bẩn, khử mùi hôi và vi khuẩn, giảm thiểu việc sử dụng nước và giữ bàn cầu sạch sẽ trong thời gian dài. Nắp rửa điện tử NEW WASHLET tích hợp: công nghệ khử trùng Ewater+, tự động đóng/mở nắp, sưởi ấm nắp ngồi, khử mùi, vòi rửa đa chức năng, sấy khô, xả tự động, |
| Hệ thống xả | : | Tornado Siphon-Jet Hybid sinh thái siêu mạnh, siêu êm, tiết kiệm nước |
| Lượng nước xả | : | 3.8/2.8L |
| Thiết kế | : | Thân dài, thân kín |
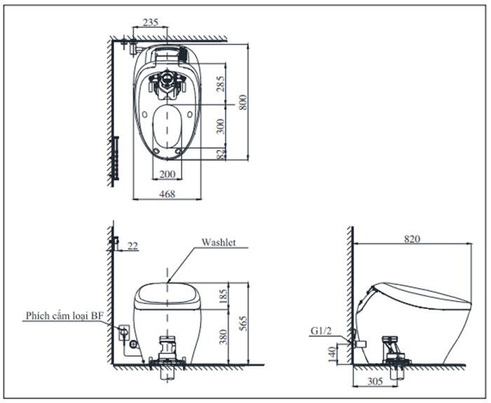
| Tâm xả | : | 305mm |
| Màu bảng điều khiển | : | Mạ vàng |
| Áp lực nước | : | 0.05MPa~0.75MPa |
| Màu sắc | : | Màu trắng |
TÍNH NĂNG
- Thiết kế sang trọng, hiện đại tích hợp nhiều tính năng
- Hệ thống sinh thái Hybrid
- Xả nhấn 2 chế độ 3.8/2.8L
- Áp nước tối thiểu chỉ 0.05Mpa
- Nắp đóng/ mở tự động khi kích hoạt mắt cảm ứng
- Nắp rửa điện tử Washlet (220V) đóng/ mở tự động với nhiều chức năng rửa và sấy khô
tự động phun sương làm sạch lòng cầu và vòi rửa bằng cách ngăn vi khuẩn đảm bảo vệ sinh- Thiết kế thân kín, vành kín tiện dụng cho việc vệ sinh hàng ngày
- Công nghệ CeFiONtect giúp lòng bàn cầu siêu nhẵn, hạn chế tối đa các vết bẩn, vi khuẩn
- Hệ thống xả xoáy Tornado Siphon-Jet Hybid sinh thái siêu mạnh, siêu êm, tiết kiệm nước mạnh mẽ,
dòng nước xoáy đều quanh mặt cầu đem lại hiệu quả tối ưu - Thiết kế xả trực tiếp không gây ồn
Bộ sưu tập NEOREST với thiết kế độc đáo tích hợp những công nghệ thông minh nhất đem đến cho nhà vệ sinh sự hoàn hảo tuyệt mỹ . Công nghệ tự động của TOTO đem đến sự tiện nghi tối ưu cho người sử dụng.
Nắp cầu tự động đóng mở nhẹ nhàng và hệ thống cảm ứng tự động xả với hệ thống xả xoáy Tornado mạnh mẽ, hiệu quả, bên cạnh hệ thống tự động khử mùi làm cho nhà vệ sinh luôn sạch sẽ hoàn toàn. Chậu rửa NEOREST Series/SE tích hợp vòi cảm ứng tự động nhanh chóng và tiện lợi cho người sử dụng.

BẠN MUỐN MUA:

Trông được đấy
Trả lờiXóaToToBM
storage heater replacement grant
Trả lờiXóaTop Digital Marketing Trends of 2025
Trả lờiXóaseo vs paid ads
Trả lờiXóa